CENTRO STORICO

In vendita
Appartamento
Verona (Centro storico)
498.000 €
Descrizione
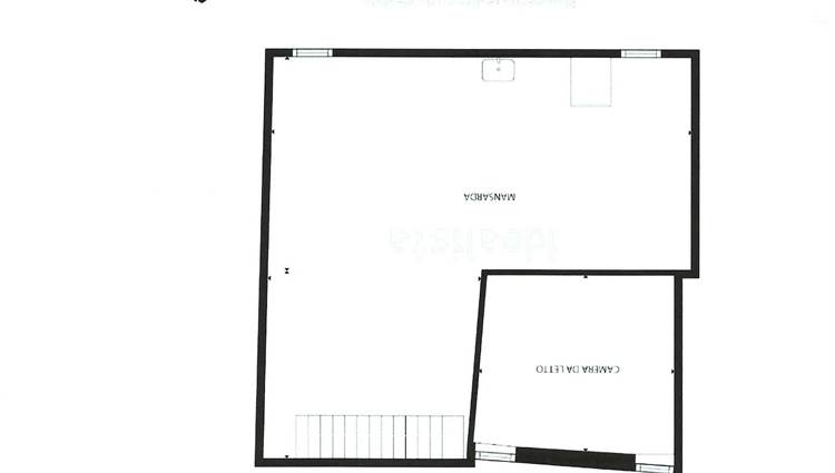
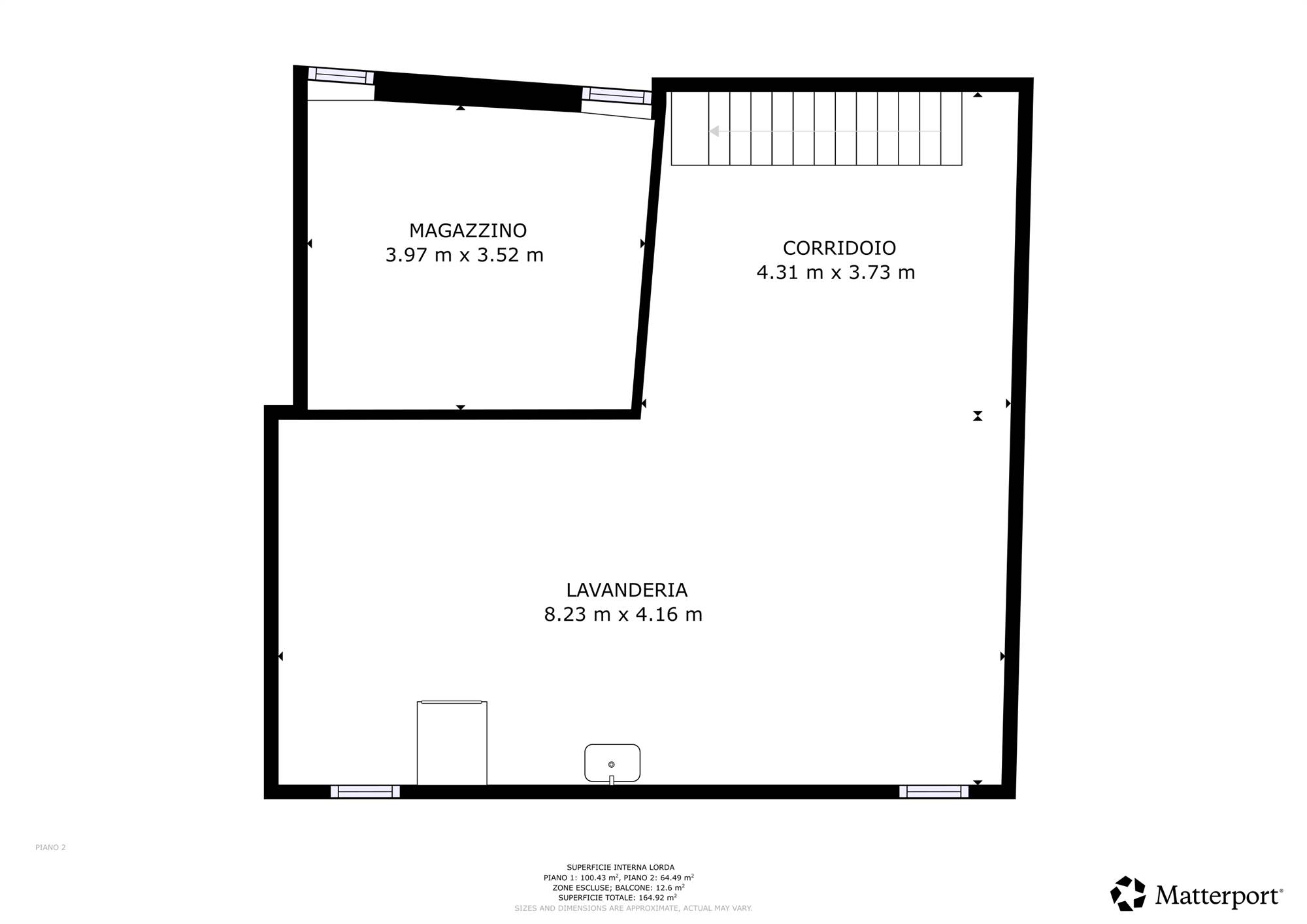
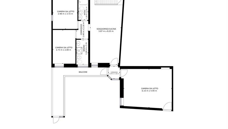
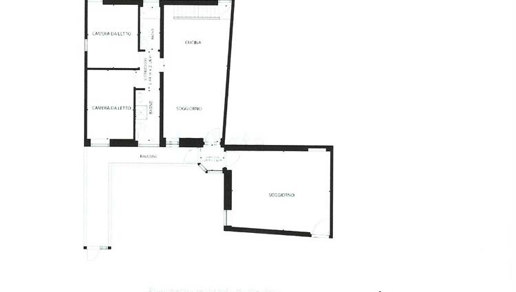
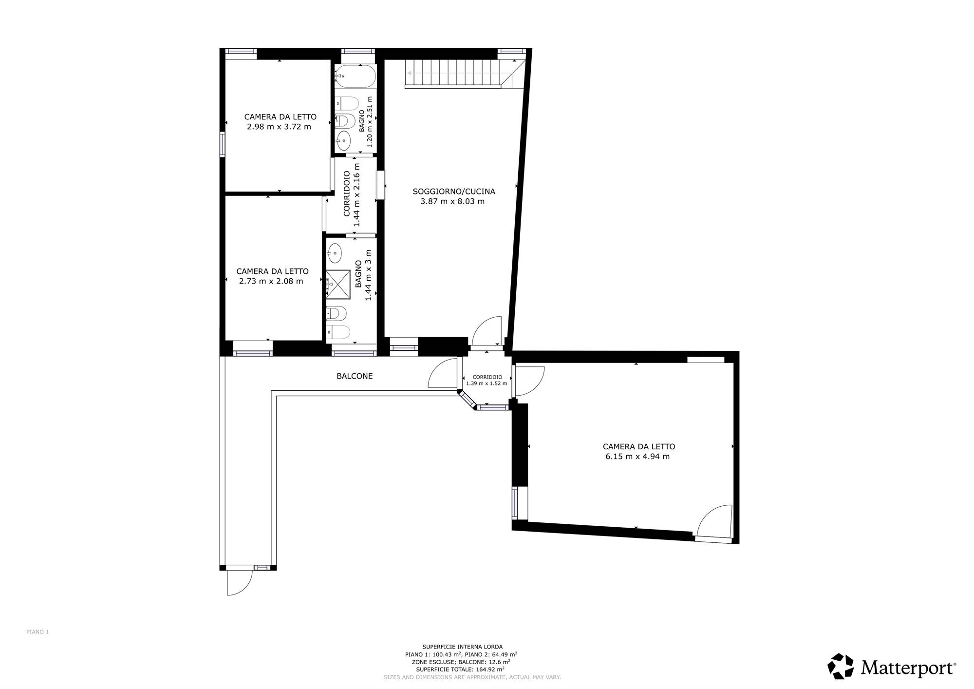
CENTRO STORICO in splendido ed importante Palazzo del '500 nelle v.ze di P.za delle Erbe, proponiamo in vendita grande appartamento di mq. 175 su due livelli da ristrutturare, sito al p. II° e III° con ascensore. L'immobile è composto da una zona soggiorno/salotto con accesso al balcone interno, un'ampia ed aperta zona pranzo con cucina a vista, due camere, due bagni ed al piano sovrastante, grande spazio mansardato da adibire a living, lavanderia ed ulteriore camera con cabina armadio. Le generose dimensioni dell'immobile, possono comunque permettere diverse soluzioni di sviluppo e personalizzazioni, oltre a godere del prestigio di una location di indubbio fascino. Cl. En. E - Ipe 111,89 - €. 498.000,00 possibilità di p. auto a parte.
Caratteristiche principali
Codice:
BS 498
Città:
Verona (Centro storico)
Categoria:
Appartamento
Spese condominiali:
1.500 € / anno
Locali:
5
Camere:
4
Bagni:
2
Mq:
175
Balconi:
1
Piano:
2
Anno:
1500
Classe energetica:
E
111,89 kWh/m²a
Stato Immobile:
Da Ristrutturare
Grado:
Signorile
Posizione:
Centro Storico
Panorama:
Vista Aperta
Arredi:
Non Arredato
Tipo Soggiorno:
Soggiorno
Tipo Cucina:
Abitabile
Riscaldamento:
Autonomo
Tipo Riscaldam.:
Caldaia
Tipo Impianto:
Radiatori
Accessori
Ascensore
Cancello Elettrico
Passaggio Automobilistico
Passaggio Pedonale
Porta Blindata
Richiedi informazioni
Invia
Cookie preference